Byt I

Byt I

Prodaný
3+1 Dispozice domu
73 m² Podlahová plocha
4 NP Poschodí bytu
0 m² Balkón / lodžie
Poptat tento byt

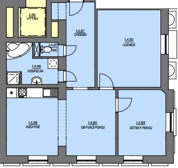
Byt střední velikosti s podlahovou plochou 73 m2 a dispozicí 3+1 se nachází ve čtvrtém nadzemním podlaží. Koupelna s WC je vybavena elektrickým podlahovým topením. Vytápění bytu je napojené na centrální vytápění, které zajišťuje i ohřev teplé vody. K bytu přísluší prostorná sklepní kóje. Možnost parkování. Byt je vhodný pro rodinu s dětmi, samostatné páry i k individuálnímu bydlení.


Byt je ve stavu před finálním dokončením, takže barevné provedení si můžete vybrat přesně dle vašich představ. Cena již obsahuje plné dokončení bytu ve stanoveném standardu, po dohodě lze provést klientské změny v nadstandardu dle vlastního výběru za příplatek.

Technické informace

I.4.01
BYT I - CHODBA
9,5
I.4.02
BYT I - LOŽNICE
17
I.4.03
BYT I - DĚTSKÝ POKOJ
11
I.4.04
BYT I - OBÝVACÍ POKOJ
13
I.4.05
BYT I - KUCHYŇE
12,5
I.4.06
BYT I - KOUPELNA
7
I.4.07
BYT I - WC
1,5

Poptat tento byt

Zobraz modal okno validace
Jméno a příjmení (povinné)
E-mail (povinné)
Telefon:
Váš dotaz
(povinné) - Takto označené položky je nutné vyplnit